Loading...
Totalglas schuifloketten Totalglas schuifloketten

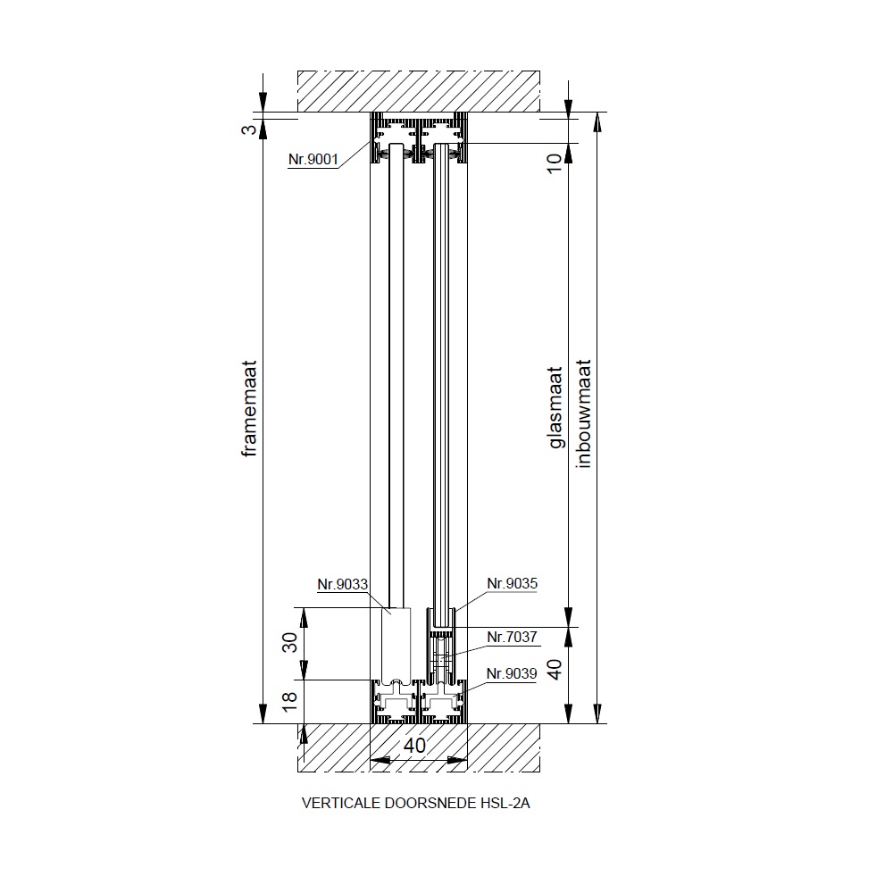
HSL

Horizontaal schuivende loket, handbediend

Voorzien van:

  • 6 tot 10 mm blank voorgespannen floatglas
  • loopplint nr. 9035
  • kogelgelagerde rollen nr. 7037
  • kopstukje nr. 9033
  • plintslot nr. 9977
  • frame profiel nr. 9001
  • naturel geanodiseerde looprails nr. 9039
  • geleidingsborstel

Afbeeldingen zijn een voorbeeld van type HSL-2A

HSL-2A
Schuifloket met 6 mm glas
HSL-3A
Schuifloket met 10 mm glas
HSL-4A
Schuiflokte met 6 mm glas en middennaadprofiel
HSL-5A
Schuifloket met 6 mm glas en onder- en bovenprofiel
HSL-6A
Schuifloket met 10 mm glas en onder- en bovenprofiel
HSL-9A
Schuifloket met 8 mm glas (hangend)
HSL-10B
Schuifloket met 8 mm glas en onder- en bovenprofiel (hangend)

De handmatig bediende schuifloketten van Mview+ zijn in verschillende modellen leverbaar zodat vrijwel ieder loket kan worden gerealiseerd. Hieronder een overzicht van de verschillende type schuifloketten. Standaard worden de schuifloketten in type A uitgevoerd, type B t/m F behoren tot de opties. Schuifloket HSL-9 is als enige uitvoerbaar in type G.

Download voor alle informatie de technische documentatie. Hierin vindt u onder andere: technische specificaties, technische detailtekeningen, samenstellingsoverzicht, aansluitdetails en onderdelen.

Heeft u na het inzien van de technische documentatie vragen en/of heeft u specifieke productwensen, neem dan contact op met Mview+. Wij helpen u graag verder.