Loading...
Totalglas puien en deuren Hardglazen doordraaiende deuren

TPM

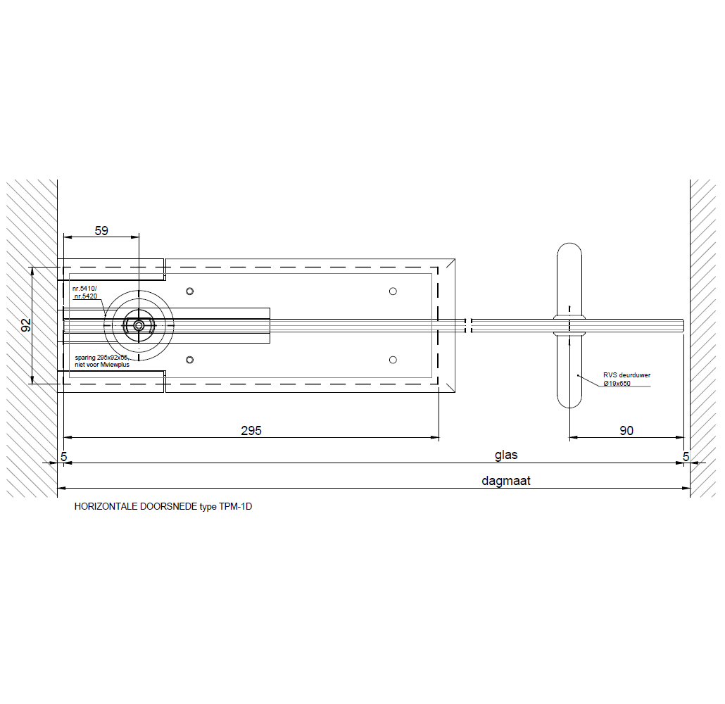
TOTAL GLAS hardglazen doordraaiende deur / pendeldeur op vloerveer met Metinox Design draaibus

Total Glas puien en deuren zijn er in verschillende uitvoeringen, onderstaande weergave is van type TPM-1D. 

Voorzien van:

  • blank voorgespannen floatglas
  • rvs bovenspeun nr. 5003
  • rvs bovendraaipunt nr. 5410
  • rvs onderdraaipunt nr. 5420
  • vloerveer nr. 8680 met ruststand
  • rvs deurduwer Ø19 x 650 mm

Bekijk alle varianten en technische details in de technische documentatie.

TPM-1D
Doordraaiende deur met Metinox onder- en boven draaibus
TPM-1E
Doordraaiende deur met Metinox onder- en boven draaibus excentrisch
TPM-1F
Doordraaiende deur met Metinox draaibuis excentrisch

Overzicht maximale maten

Door de uiteenlopende mogelijkheden van de verschillende types van de Total Glas doordraaiende pendeldeur is er altijd wel een pendeldeur welke geschikt is voor uw project. Hier vind u het overzicht van de verschillende types met de maximale hoogte en breedte verhouding, mogelijkheid wel of geen verschoven draaipunt en de hoogte en breedte verhouding wanneer het unieke Metinox RVS design beslag wordt toegepast. Download voor alle informatie over dit product de technische documentatie, hierin vindt u onder andere: technische specificaties, samenstellingsoverzicht, tekeningen, aansluitdetails en onderdelen.

Mview+ denkt graag met u mee. Heeft u vragen over de vele mogelijkheden van de Total Glas puien en deuren of wilt u advies over de mogelijkheden voor uw project? Neem dan contact met ons op. Wij helpen u graag verder.