Loading...
Totalglas puien en deuren Glazen schuifdeuren

TSD

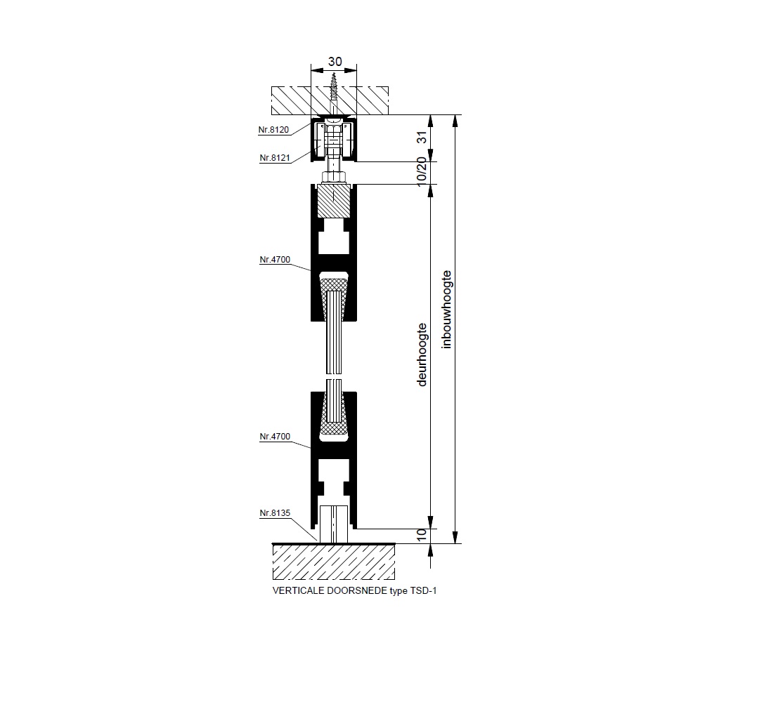
TOTAL GLAS hardglazen schuifdeur met onder- en bovenprofiel

Total Glas schuiframen en deuren zijn er in verschillende uitvoeringen, onderstaande weergave is van type TSD-1.

  • 10 mm blank voorgespannen floatglas
  • bovenplint nr. 4700 RAL 9006
  • dubbele kogelgelagerde looprollen nr. 8131
  • rvs handgrepen Ø 16 x 600 mm nr. 5154
  • naturel geanodiseerde looprails nr. 8120
  • eindstoppen met klem nr. 8124
  • ondergeleiding nr. 8135
  • onderplint nr. 4700
  • Maximaal deurgewicht: 80 kg
  • Maximale deurbreedte: 1800 mm

Bekijk alle varianten en technische details in de documentatie.

Total Glas schuifdeuren zijn in verschillende modellen met verschillende schuifsystemen te leveren. Onderstaand overzicht zijn de standaard modellen van de Total Glas schuifdeuren. Zie de technische documentatie voor alle technische specificaties en mogelijkheden per schuifsysteem. Afwijkende formaten of schuifrichting zijn ook mogelijk, neem hiervoor contact op met onze technische adviseurs. 

Mview+ denkt graag met u mee. Heeft u vragen over de vele mogelijkheden van de Total Glas schuifpuien en -deuren of wilt u advies over de mogelijkheden voor uw project? Neem dan contact met ons op. Wij helpen u graag verder.