Loading...
Totalglas puien en deuren Geluidsisolerende scheidingswanden

TGG

TOTAL GLAS hardglazen geluidsisolerende wanden en deuren met spouwisolatie.

Total Glas hardglazen geluidsisolerende wanden en deuren worden op projectbasis gemaakt en kunnen daarom volledig worden uitgevoerd naar de eisen en wensen van de ontwerper en opdrachtgever. De wanden zijn opgebouwd uit twee gelaagde glaspanelen met unieke glasheldere kunststof afstandhouder tussen de panelen. Deze afstandhouder is vele maler stijver dan glas waardoor zeer hoge en stabiele isolerend glaswanden kunnen worden gerealiseerd zonder verticale profielen. Tot de standaard mogelijkheden behoren:

  • Volglazen geïsoleerde wanden;
  • Volglazen geïsoleerde wanden in combinatie met deuren;
  • Volglazen geïsoleerde wanden in combinatie met kasten en deuren.

Bekijk hieronder de technische details van de diverse varianten. Voor meer informatie over de mogelijkheden kunt u contact opnemen met onze adviseurs door te bellen naar 0344-750400. 

TGG-V
Geluidsisolerende wand
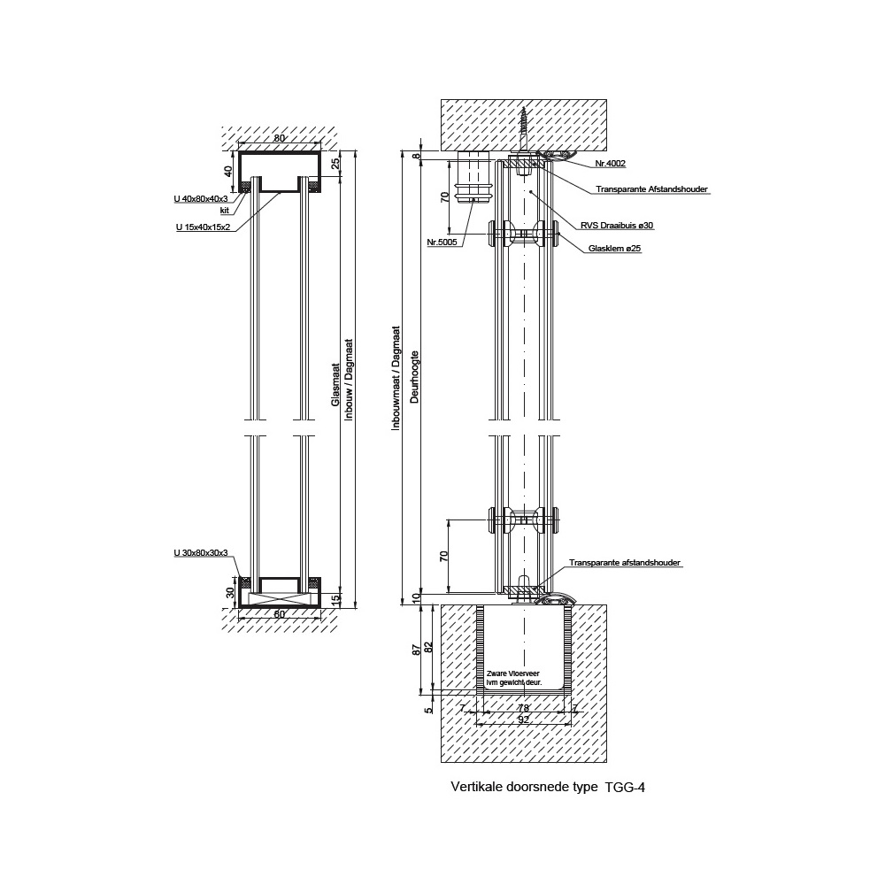
TGG-4
Geluidsisolerende deur en wand
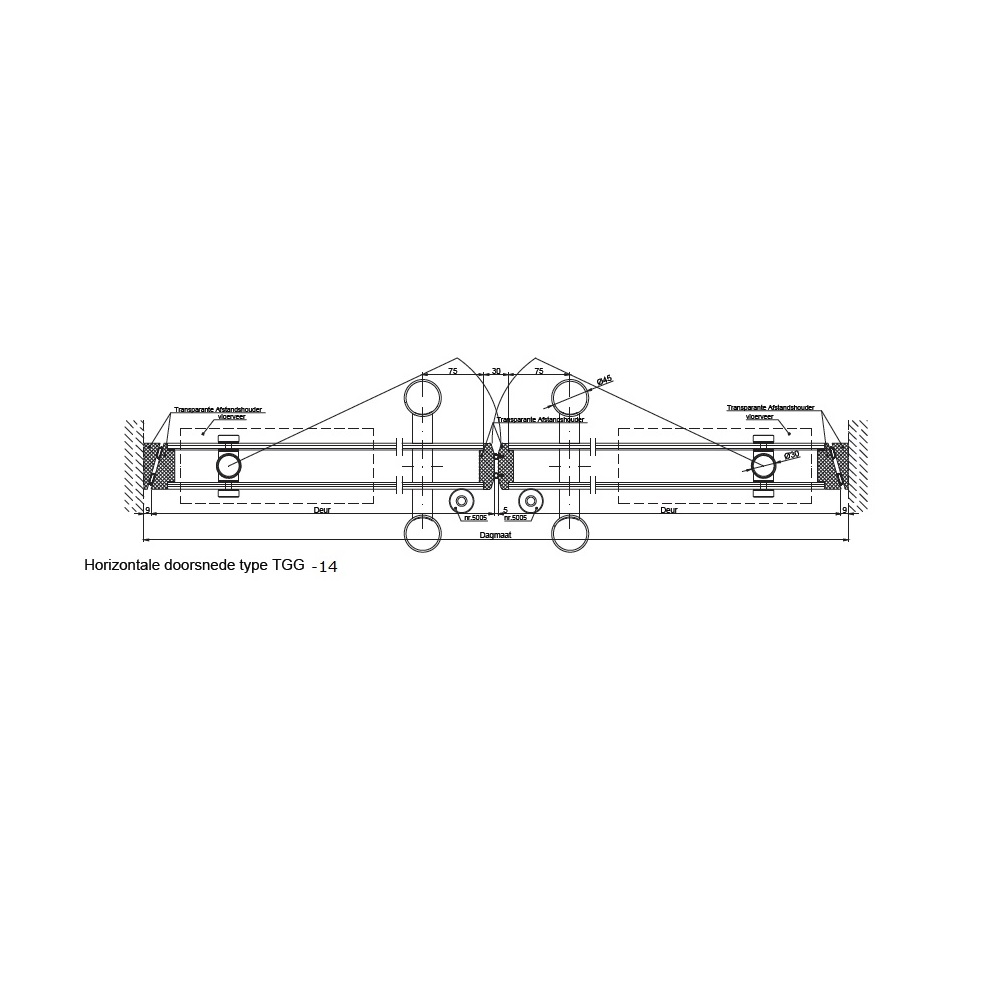
TGG-14
Geluidsisolerende dubbele deur

Mview+ denkt graag met u mee. Heeft u vragen over de vele mogelijkheden van de Total Glas geluidsisolerende wanden en deuren of wilt u advies over de mogelijkheden voor uw project? Neem dan contact met ons op. Wij helpen u graag verder.