Loading...
Silent Air Gevelschermen Silent Air Gevelschermen

SAG

Silent Air Gevelscherm met diverse soorten coulissen

Silent Air Gevelschermen zijn opgebouwd uit diverse soorten coulissen, afhankelijk van de desgewenste geluidreductie. Door de verschillende afmetingen van de coulissen kan de geluidsreductie oplopen tot wel 24dB.

Voorzien van:

  • Blank voorgespannen glas, doorval veiligheid is een optie
  • Geluidsabsorberende coulisse type A
  • rvs glasklem
  • rvs afstandhouder
  • optioneel met flap

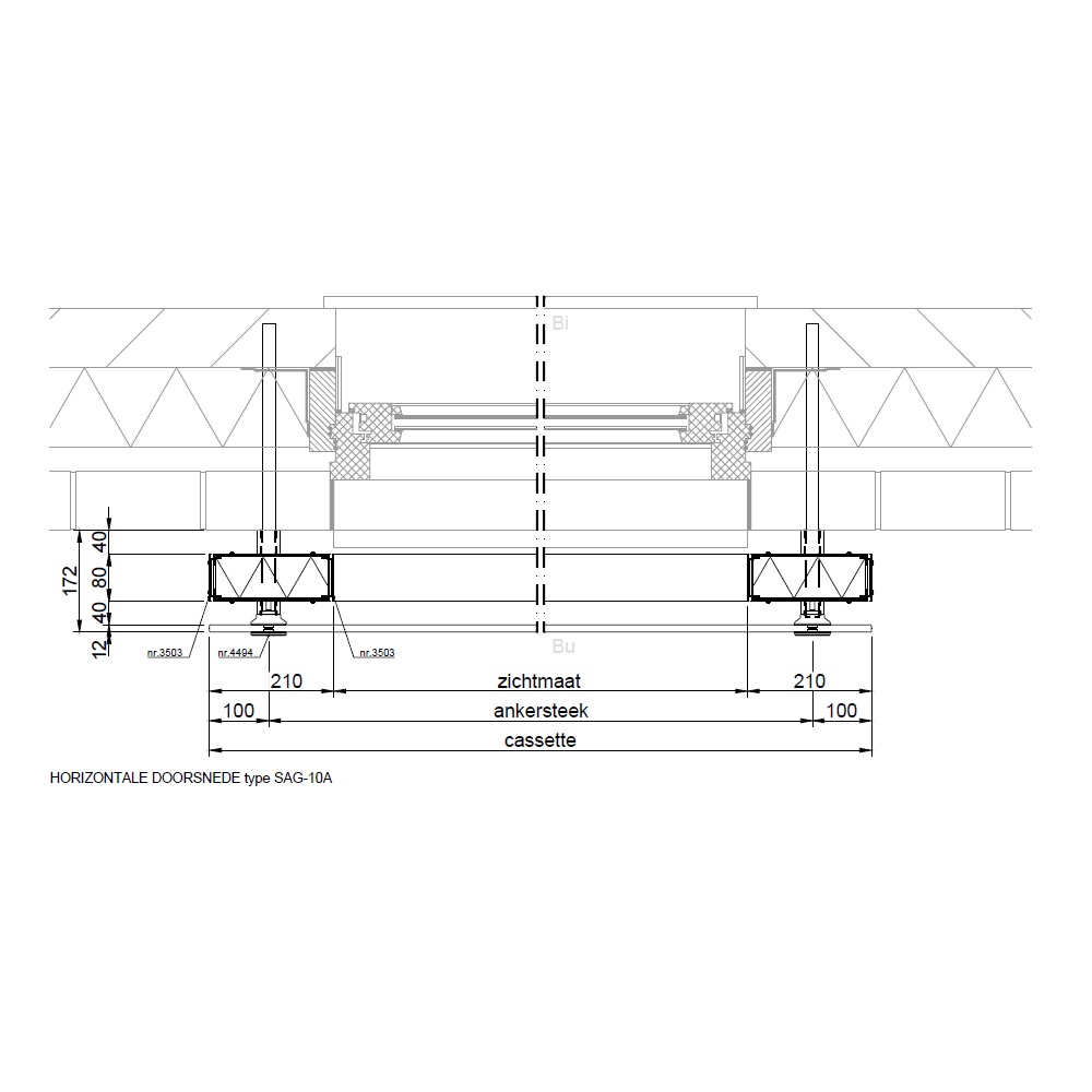
Afbeeldingen zijn een voorbeeld van type SAG-10A.

SAG-10A
1 coulisse 80*210 mm geluidwering Ra(tr) 4 tot 11 dB
SAG-10B
1 coulisse 160*210 mm geluidwering Ra(tr) 8 tot 16 dB
SAG-10D
1 coulisse 160*310 mm geluidwering Ra(tr) 11 tot 19 dB

Afhankelijk van de gewenste geluidsreductie kan het juiste type gekozen worden. Voor een betere spuitventilatie kan gekozen worden voor een open bovenzijde of meerdere coulissen achter elkaar. Voor het samenstellingsoverzicht en complete productenlijst verwijzen we u naar de technische documentatie.

Download voor alle informatie de technische documentatie. Hierin vindt u onder andere: technische specificaties, technische detailtekeningen, samenstellingsoverzicht, montagemogelijkheden en maximale geluidsreductie.

Heeft u na het inzien van de technische documentatie vragen en/of heeft u specifieke productwensen, neem dan contact op met Mview+. Wij helpen u graag verder.