Loading...

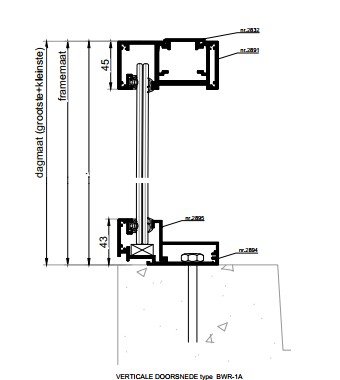
Onderstaande weergave is van type BWR-1A

Voorzien van:

  • Blank gelaagd veiligheidsglas
  • Telescopisch stelprofiel nr. 2835
  • Bovenrail nr. 2800
  • Bovenlooproller
  • Samengesteld raamprofiel nr. 2802 nr 2804 en nr 2805
  • Rvs ondervergrendeling nr 2822 en nr 2627
  • Rvs bedieningsgreep T-model nr 2865
  • Ondergeleidingsprofiel nr. 2801
  • Transparant kunststof aansluitprofiel
BWR-1A
Rechte vorm, borstwering en tussenregel 95mm
BWR-1B
Rechte vorm, borstwering en tussenregel 146mm
BWR-1C
Rechte vorm, borstwering en tussenregel 190mm

Heeft u na het inzien van de technische documentatie vragen en/of heeft u specifieke productwensen, neem dan contact op met ons op via info@mviewplus.nl. Wij helpen u graag verder.