Loading...
M-view balkonbeglazing M-view met borstwering

BBU

M-view U-vormige balkonbeglazing op borstwering

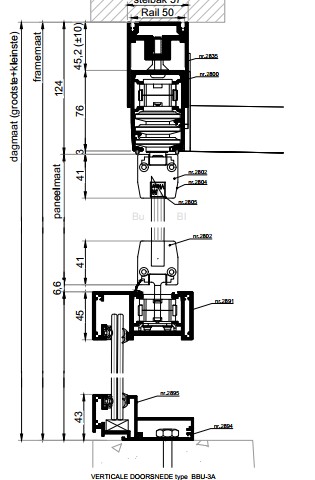
Onderstaande weergave is van type BBU-3A

Voorzien van:

  • Blank voorgespannen floatglas met heat soak
  • Telescopisch stelprofiel nr. 2835
  • Bovenrail nr. 2800
  • Bovenlooproller
  • Samengesteld raamprofiel nr. 2802 nr 2804 en nr 2805
  • Rvs ondervergrendeling nr/ 2822 en nr 2627
  • Rvs bedieningsgreep T-model nr. 2865
  • Telescopisch ondergeleidingsprofiel nr. 2801 / nr. 2809
  • Transparant kunststof aansluitprofiel
BBU-1A
U-vorm, borstwering en tussenregel 95mm, 1 zijde te openen
BBU-1B
U-vorm, borstwering en tussenregel 146mm, 1 zijde te openen
BBU-1C
U-vorm, borstwering en tussenregel 190mm, 1 zijde te openen
BBU-2A
U-vorm, borstwering en tussenregel 95mm, 2 zijden te openen
BBU-2B
U-vorm, borstwering en tussenregel 146mm, 2 zijden te openen
BBU-2C
U-vorm, borstwering en tussenregel 190mm, 2 zijden te openen

Heeft u na het inzien van de technische documentatie vragen en/of heeft u specifieke productwensen, neem dan contact op met ons op via info@mviewplus.nl. Wij helpen u graag verder.