Loading...
M-view balkonbeglazing M-view met borstwering

BBR

M-view rechte balkonbeglazing op borstwering

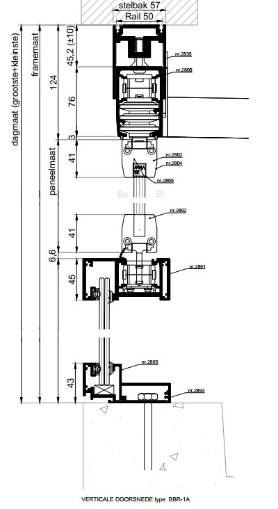
Onderstaande weergave is van type BBR-1A 

Voorzien van:

  • Blank voorgespannen floatglas met heat soak
  • Telescopisch stelprofiel nr. 2835
  • Bovenrail nr. 2800
  • Bovenlooproller
  • Samengesteld raamprofiel nr. 2802 nr 2804 en nr. 2805
  • Rvs ondervergrendeling nr. 2822 en nr 2627
  • Rvs bedieningsgreep T-model nr. 2865
  • Ondergeleidingsprofiel nr. 2801
  • Transparant kunststof aansluitprofiel

 

BBR-1A
Rechte vorm, met borstwering en tussenregel 95mm, 1 zijde te openen
BBR-1B
Rechte vorm, met borstwering en tussenregel 146mm, 1 zijde te openen
BBR-1C
Rechte vorm, met borstwering en tussenregel 190mm, 1 zijde te openen
BBR-2A
Rechte vorm, met borstwering en tussenregel 95mm, 2 zijden te openen
BBR-2B
Rechte vorm, met borstwering en tussenregel 146mm, 2 zijden te openen
BBR-2C
Rechte vorm, met borstwering en tussenregel 190mm, 2 zijden te openen

Heeft u na het inzien van de technische documentatie vragen en/of heeft u specifieke productwensen, neem dan contact op met ons op via info@mviewplus.nl. Wij helpen u graag verder.